Armory Loft
2022
New York City
Residential (In Progress)
1,000 SF
Millwork: Propylaea
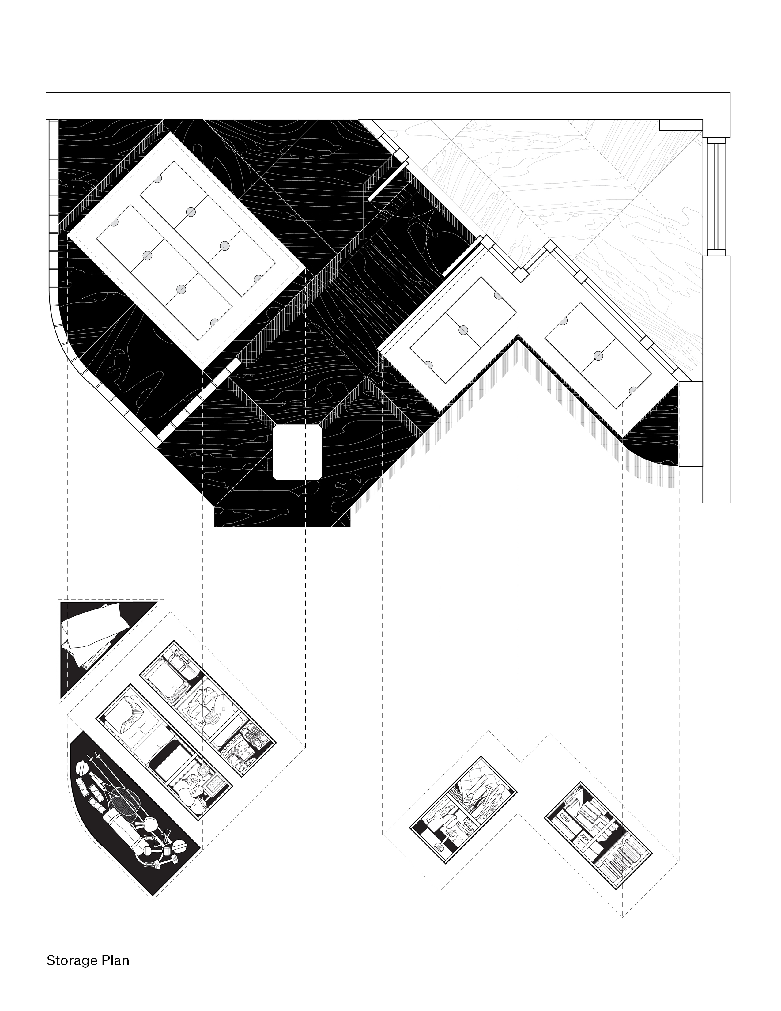
In this apartment renovation, the logic of a singular existing platform was multiplied to create a landscape of cascading, “off-axis” platforms, demarcating zones for entertaining, sleeping, and storage.
2022
New York City
Residential (In Progress)
1,000 SF
Millwork: Propylaea
In this apartment renovation, the logic of a singular existing platform was multiplied to create a landscape of cascading, “off-axis” platforms, demarcating zones for entertaining, sleeping, and storage.










Forgoing traditional partition walls in favor of a changing ground plane allows light to permeate further into the apartment and to keep different uses flexible, fluid, and simultaneous. Enclosed with perforated metal and accessed by a strategically positioned custom metal ladder, a mezzanine level overlooks the apartment and provides additional spaces for lounging and storage. The interior, while fixed, projects a sense of limitless transformability through its manifold plateaus: a hill, a landscape, a closet, a step, a gym, a wall – together creating a sense of dynamism in the open loft.