Bed-Stuy Loft
2017
Brooklyn, New York
Residential (Completed)
750 SF
General Contractor: CreateNYC
Fabrication: Propylaea
Photography: Michael Vahrenwald/Esto
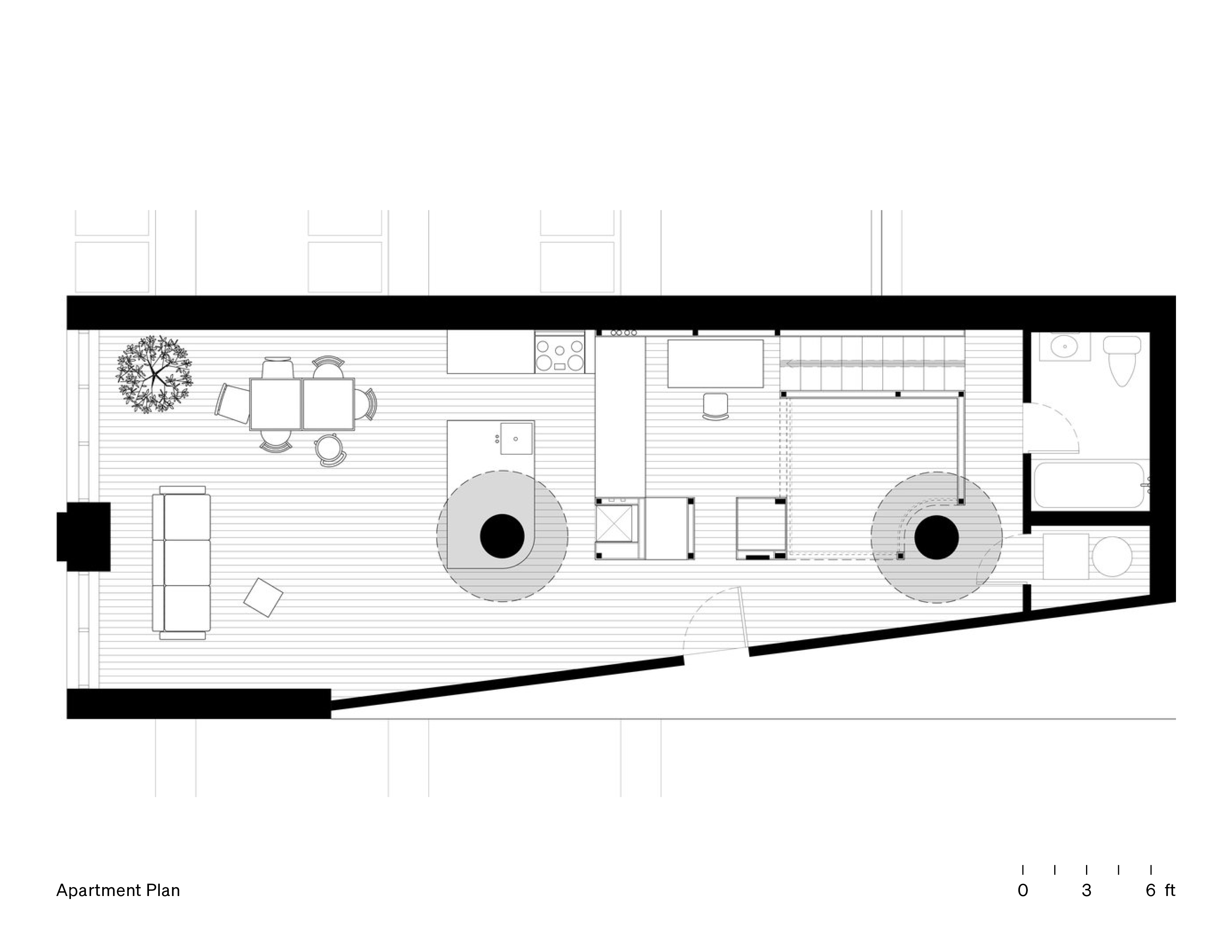
This renovated apartment for a New York–based fashion designer transformed an existing loft by adding a new mezzanine structure to reorganize the living space and introduce a new material vocabulary to tie old into new.
The mezzanine jogs to produce two taller spaces and two shorter spaces over the two levels in order to maximize efficiency and give hierarchy to the living area. The new build-out works with the existing structure (two massive concrete columns) to create a conversation with the found conditions.
The design combines unfinished rough materials (exposed steel, raw plywood, expanded mesh screens) with restrained blocks of color (a green-lacquered kitchen island, bright copper pipes) to produce something clean, light, and unprecious. The volume of the new living area, while present and sturdy in its form, is carved and shifted to bring light from the front windows of the unit through to the back, paradoxically making something light out of something solid.
2017
Brooklyn, New York
Residential (Completed)
750 SF
General Contractor: CreateNYC
Fabrication: Propylaea
Photography: Michael Vahrenwald/Esto
This renovated apartment for a New York–based fashion designer transformed an existing loft by adding a new mezzanine structure to reorganize the living space and introduce a new material vocabulary to tie old into new.
















The mezzanine jogs to produce two taller spaces and two shorter spaces over the two levels in order to maximize efficiency and give hierarchy to the living area. The new build-out works with the existing structure (two massive concrete columns) to create a conversation with the found conditions.
The design combines unfinished rough materials (exposed steel, raw plywood, expanded mesh screens) with restrained blocks of color (a green-lacquered kitchen island, bright copper pipes) to produce something clean, light, and unprecious. The volume of the new living area, while present and sturdy in its form, is carved and shifted to bring light from the front windows of the unit through to the back, paradoxically making something light out of something solid.