Bed-Stuy Row House
2023
Brooklyn, NY
Residential (Completed)
2,400 SF
For this three-unit row house, on a tree-lined block in Brooklyn’s Bed-Stuy, we developed a set of distinct layouts both working with and against typical organizations of an ever-popular type.
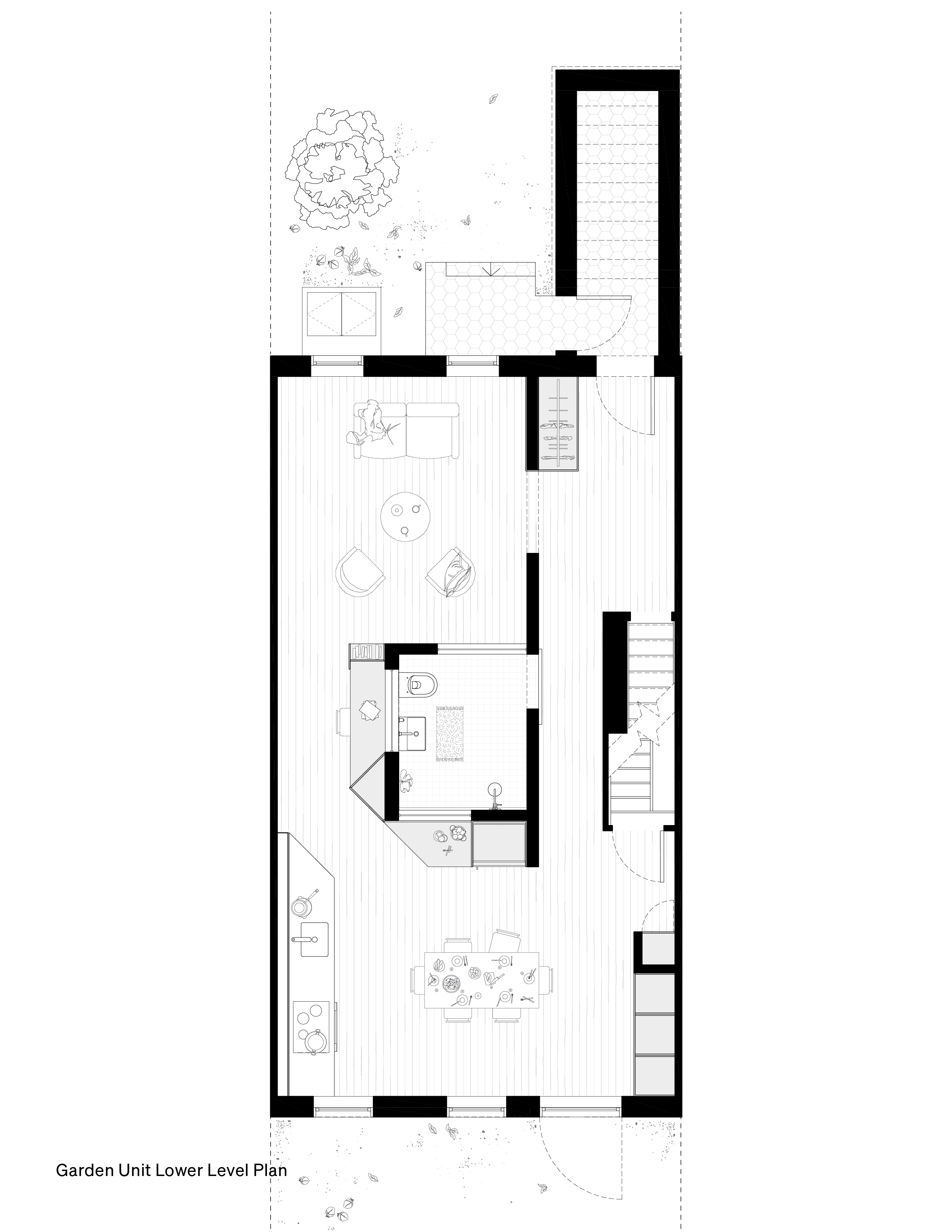
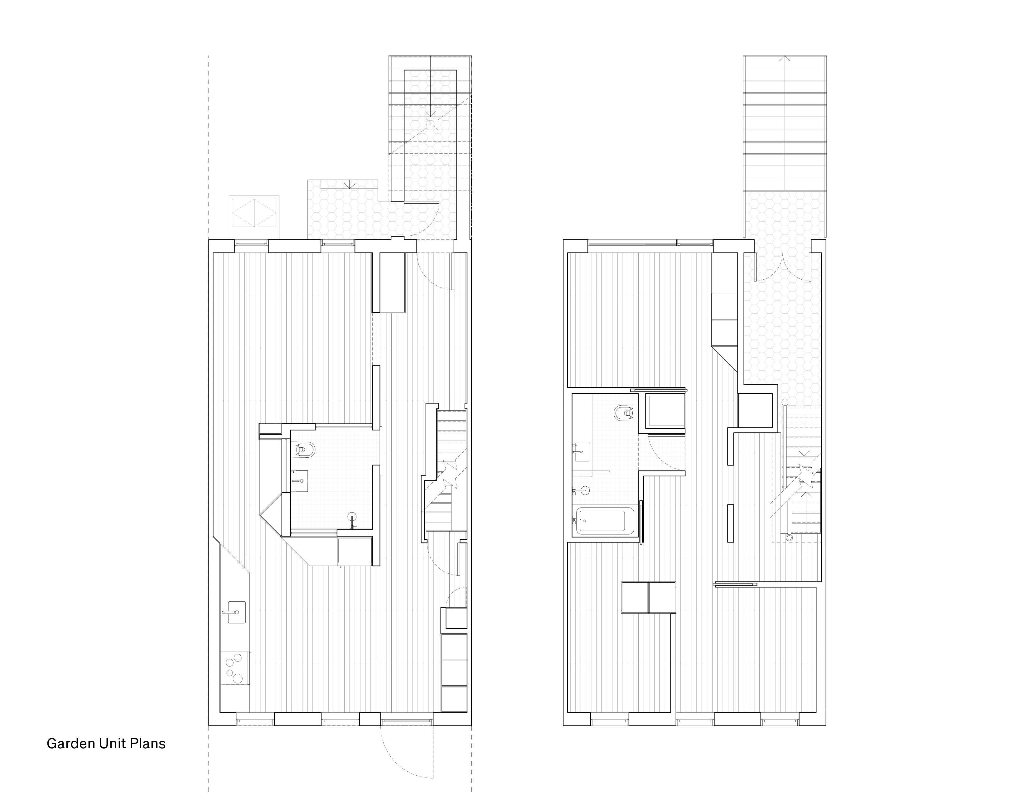
The two-floor lower unit features custom millwork that produces a series of planes, islands, and implied spaces that are open and free-flowing for a growing family. Alongside the owners, we wanted to create a sense of privacy while maintaining a feeling of openness, for which we deployed structural wall fragments, pocket doors, and a circulation strategy allowing multiple paths through the house at once.
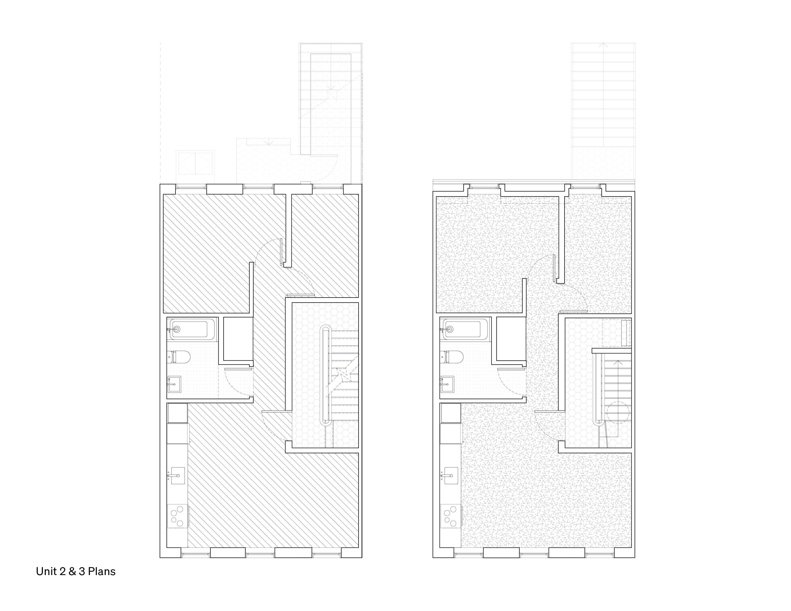
Similar strategies weave through the upstairs rental units, using more robust materials that can withstand multiple tenants moving in and out. Those units are designed to be more flexible and accommodate different layouts and individual desires. The row house itself becomes a host: a historic and banal skin covering an adaptable and custom interior, a series of designed collisions that negotiate different uses, timescales, and domestic organizations within Brooklyn’s typical fabric.
2023
Brooklyn, NY
Residential (Completed)
2,400 SF
For this three-unit row house, on a tree-lined block in Brooklyn’s Bed-Stuy, we developed a set of distinct layouts both working with and against typical organizations of an ever-popular type.









The two-floor lower unit features custom millwork that produces a series of planes, islands, and implied spaces that are open and free-flowing for a growing family. Alongside the owners, we wanted to create a sense of privacy while maintaining a feeling of openness, for which we deployed structural wall fragments, pocket doors, and a circulation strategy allowing multiple paths through the house at once.
Similar strategies weave through the upstairs rental units, using more robust materials that can withstand multiple tenants moving in and out. Those units are designed to be more flexible and accommodate different layouts and individual desires. The row house itself becomes a host: a historic and banal skin covering an adaptable and custom interior, a series of designed collisions that negotiate different uses, timescales, and domestic organizations within Brooklyn’s typical fabric.