Hydroponic Eatery
2023
Brooklyn, NY
Cultural (In Progress)
with Jedy Lau
2,500 SF
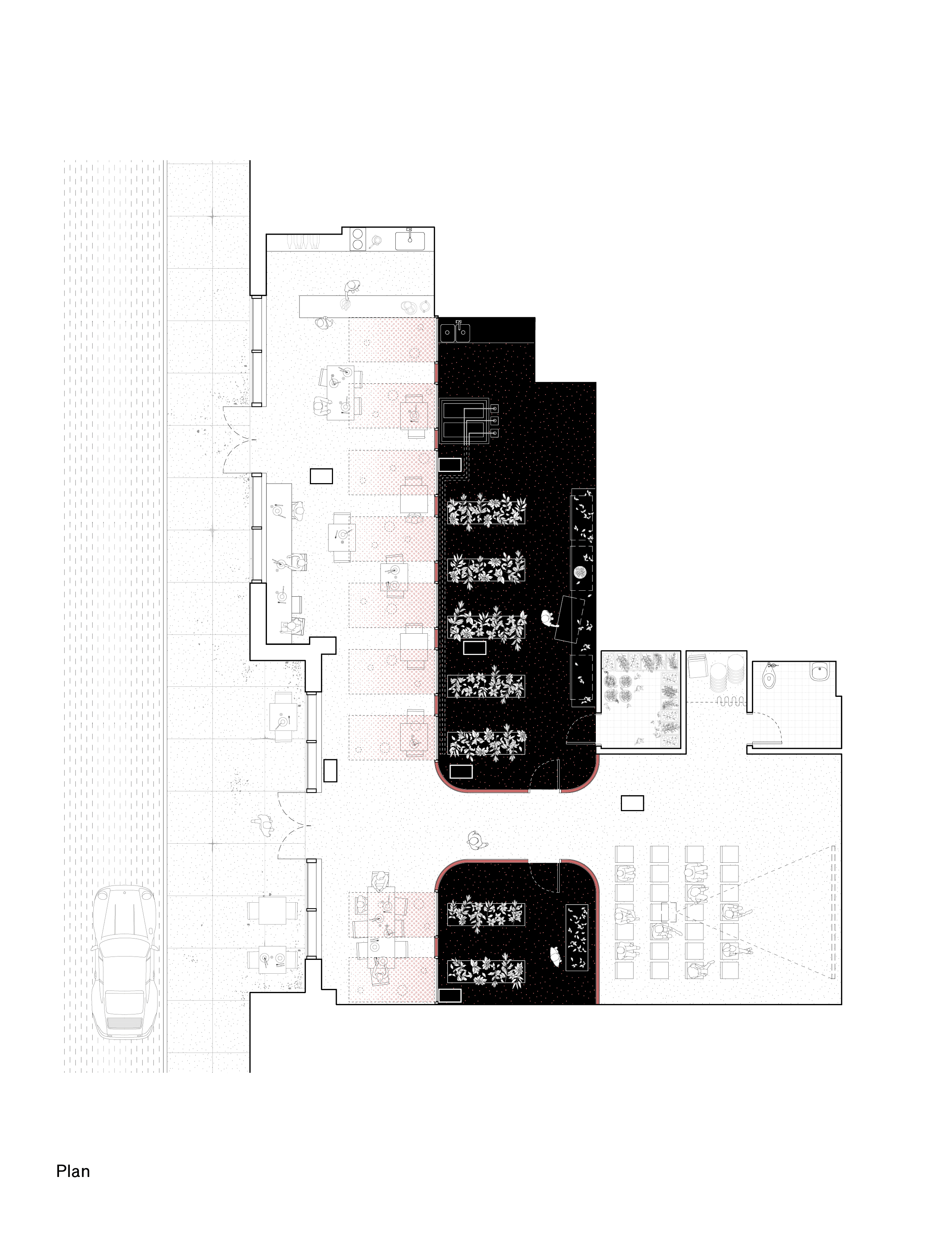
Situated at the ground floor of a new affordable housing development, this project for non-profit Project Eats introduces a hydroponic farm and eatery to Brooklyn’s Brownsville neighborhood.
2023
Brooklyn, NY
Cultural (In Progress)
with Jedy Lau
2,500 SF
Situated at the ground floor of a new affordable housing development, this project for non-profit Project Eats introduces a hydroponic farm and eatery to Brooklyn’s Brownsville neighborhood.









From the outset, we explored a design that optimized hydroponic growing conditions while connecting to the street. The program is organized in strips: a cafe and serving area run parallel to the sidewalk and create an active and bustling storefront. The growing area is just beyond—visible from the sidewalk past the cafe tables through large windows. Finally, a flexible event space at the back provides additional seating or converts to a screening room and open area for other uses.
These programs create a set of nested interiors visible from the sidewalk. The design includes materials that are robust, warm, and inviting—emphasizing this as a space of vibrant activity and producing a sense of specificity and place. Mirrored surfaces, hanging plants and light fixtures, and bright colors separate the character of the interior from the larger context of the building and create a dense and bright hub that represents the project’s larger remit as a source of sustenance and community.
These programs create a set of nested interiors visible from the sidewalk. The design includes materials that are robust, warm, and inviting—emphasizing this as a space of vibrant activity and producing a sense of specificity and place. Mirrored surfaces, hanging plants and light fixtures, and bright colors separate the character of the interior from the larger context of the building and create a dense and bright hub that represents the project’s larger remit as a source of sustenance and community.