Leonard Cohen: A Crack in Everything
2019
The Jewish Museum, New York City
Cultural (Completed)
12,000 SF
Fabrication: South Side Design and Building
Acoustic Consulting: ARUP
Photography: Michael Vahrenwald/Esto
originated at the Musee d’art Contemporain de Montreal
An exhibition designed to create an immersive, visually compelling and in-depth exploration of Leonard Cohen’s influence on a range of artists and mediums. The show, originally presented at the Museum of Contemporary Art in Montreal, brings together 12 artists commissioned to produce original work responding to the singer’s legacy.
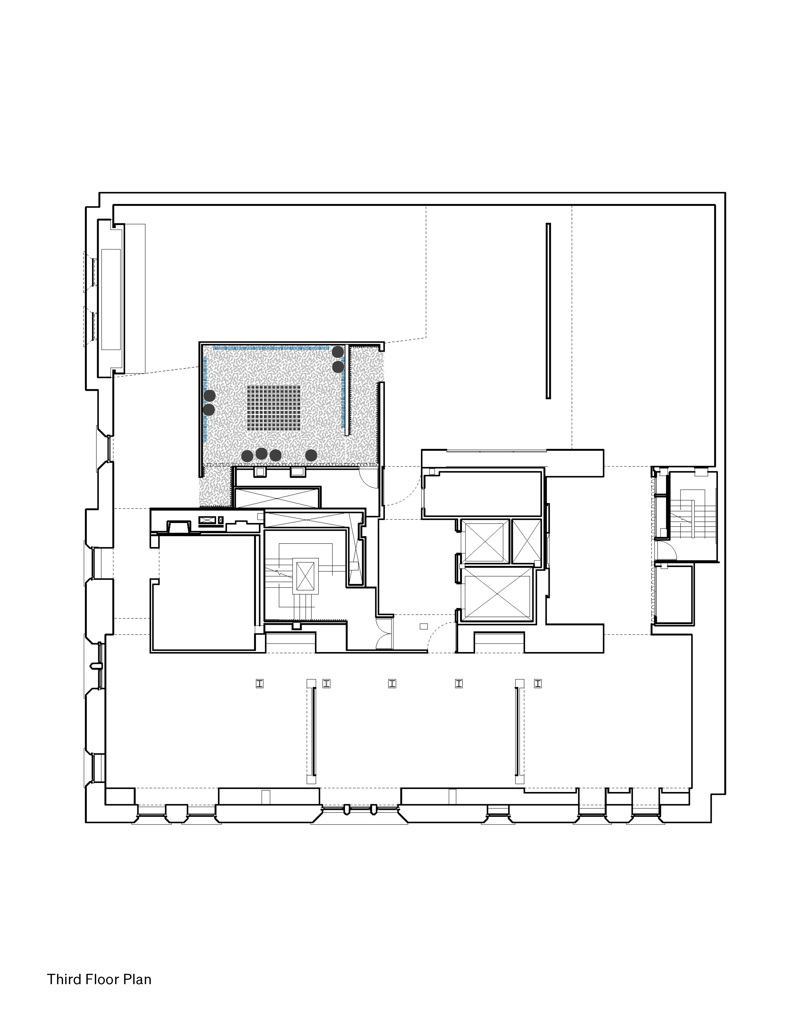
This project, staged at the Jewish Museum in New York, weaves the exhibition across the entire museum and over a range of galleries, from the “white box” ground floor to the ornamental and idiosyncratic second floor galleries through to the permanent collection on the third floor. Sound buffering, wayfinding, and uniting the show were all crucial to maintaining its coherence and flow. For it, we worked largely on a strategy targeting thresholds—from sound corridors to new doorways to circulation spines—through new materials, colors, and textures. Ultimately, the show can be perceived as an autonomous spatial narrative within the otherwise articulated and particular building.
2019
The Jewish Museum, New York City
Cultural (Completed)
12,000 SF
Fabrication: South Side Design and Building
Acoustic Consulting: ARUP
Photography: Michael Vahrenwald/Esto
originated at the Musee d’art Contemporain de Montreal
An exhibition designed to create an immersive, visually compelling and in-depth exploration of Leonard Cohen’s influence on a range of artists and mediums. The show, originally presented at the Museum of Contemporary Art in Montreal, brings together 12 artists commissioned to produce original work responding to the singer’s legacy.














This project, staged at the Jewish Museum in New York, weaves the exhibition across the entire museum and over a range of galleries, from the “white box” ground floor to the ornamental and idiosyncratic second floor galleries through to the permanent collection on the third floor. Sound buffering, wayfinding, and uniting the show were all crucial to maintaining its coherence and flow. For it, we worked largely on a strategy targeting thresholds—from sound corridors to new doorways to circulation spines—through new materials, colors, and textures. Ultimately, the show can be perceived as an autonomous spatial narrative within the otherwise articulated and particular building.