Long Beach Public Library
2022
Long Beach, New York
Cultural (In Progress)
11,200 SF
with Design Advocates: BAAO, MKCA, and SEED
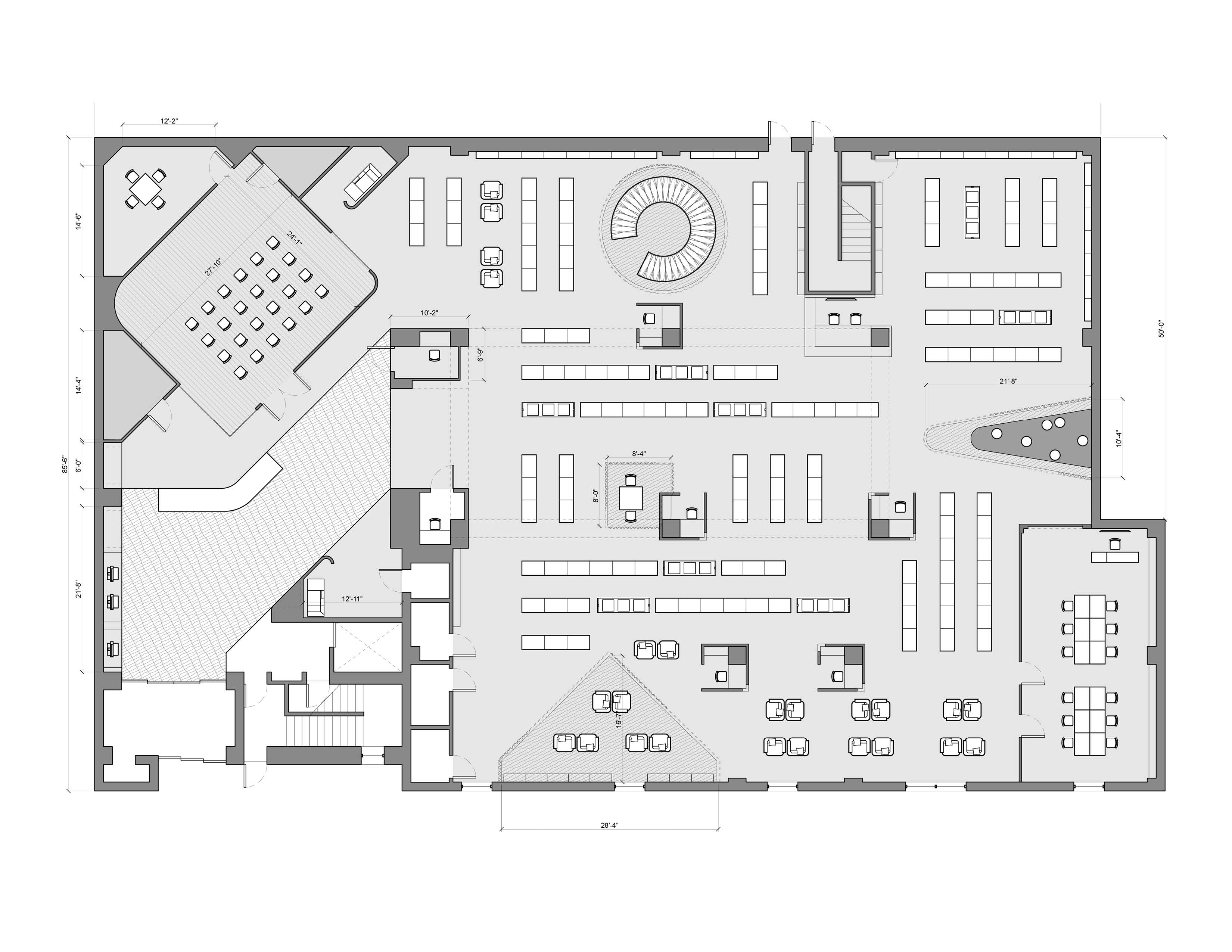
This renovation of a public building in Long Island asks how a library might be used in 2022, and includes both a reading room, dedicated work and study spaces, and a new local history gallery.
2022
Long Beach, New York
Cultural (In Progress)
11,200 SF
with Design Advocates: BAAO, MKCA, and SEED
This renovation of a public building in Long Island asks how a library might be used in 2022, and includes both a reading room, dedicated work and study spaces, and a new local history gallery.












The library was in need of an update post-Sandy, both in terms of general layout and key services. Through the non-profit organization Design Advocates, we worked on a proposal that used much of the building’s existing shelving, central to its collections, while reconceiving its organization and flow.
The plan comprises a field of objects ranging in scale from individual seating to private carrells to meeting zones for groups of different sizes. We understood the library as a site of social collection centered on access to research and digital resources. The design balances open clear views with intimate and private areas. Flexibility is designed into much of the program: the local history room converts to a lecture hall, seating areas can be curtained off for sound-containment, and the main reading room accommodates both study and meeting. The design features materials that are durable, warm, and vibrant.
The plan comprises a field of objects ranging in scale from individual seating to private carrells to meeting zones for groups of different sizes. We understood the library as a site of social collection centered on access to research and digital resources. The design balances open clear views with intimate and private areas. Flexibility is designed into much of the program: the local history room converts to a lecture hall, seating areas can be curtained off for sound-containment, and the main reading room accommodates both study and meeting. The design features materials that are durable, warm, and vibrant.