Navy Yard Office
2019
Brooklyn, New York
Commercial (Feasibility)
1,500 SF
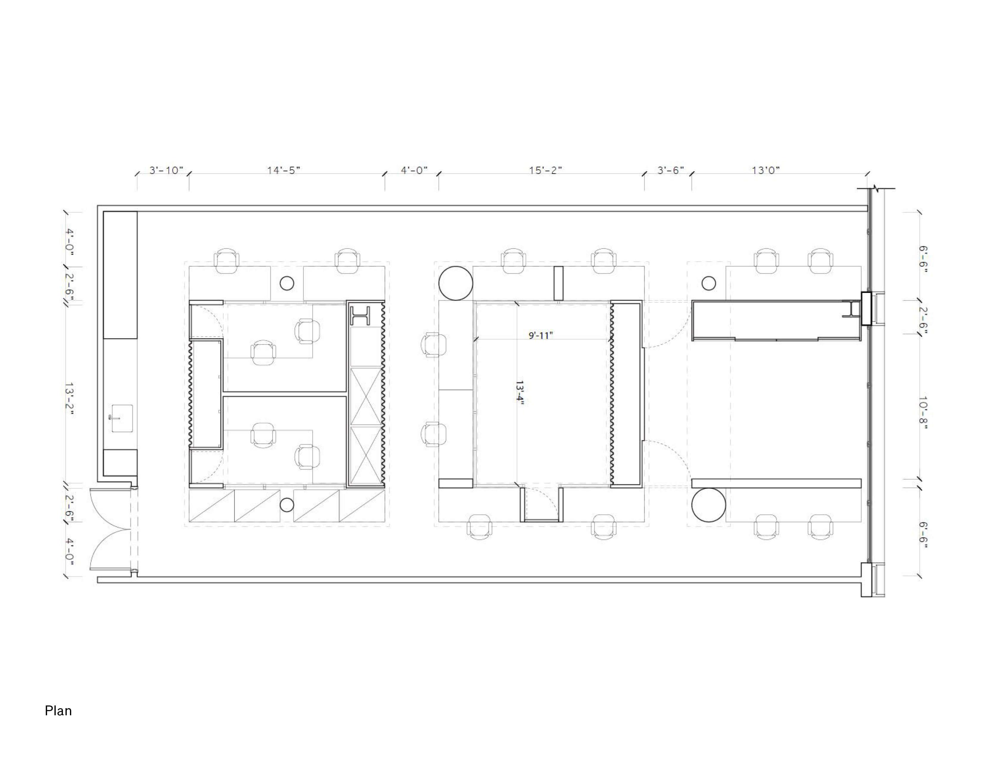
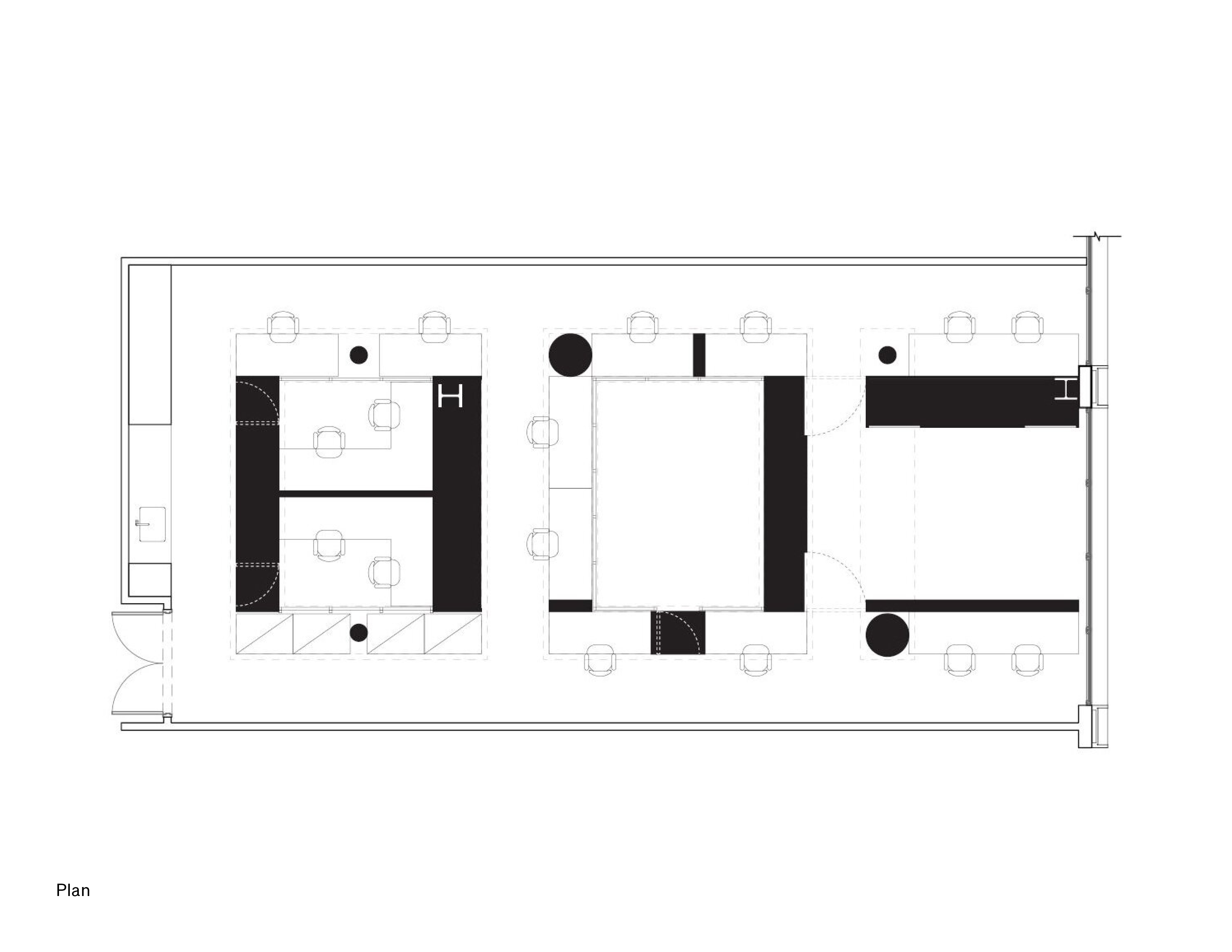
For this office in Brooklyn’s Navy Yards, we created a set of individual structures that could accommodate a range of working configurations for a company whose organization evolved on a project-by-project basis.
2019
Brooklyn, New York
Commercial (Feasibility)
1,500 SF
For this office in Brooklyn’s Navy Yards, we created a set of individual structures that could accommodate a range of working configurations for a company whose organization evolved on a project-by-project basis.






Each of the three rooms features walls thick enough to provide storage, additional seating and desks for temporary employees, and they create a network of open corridors surrounding insulated and quiet breakout spaces. Plywood, perforated metal screens, and fabric curtains make the structures read as large pieces of furniture instead of cubicles or dedicated offices—an industrial language fitting in to the general character of the Navy Yard.